Wir freuen uns, Ihnen mitteilen zu können, dass im Mai der Baubeginn für unseren Neubau in der Industriezone Dielsdorf erfolgt ist! Ab Dezember 2025 wird dieses moderne Gebäude das neue Zuhause der Bürge Haustechnik AG – und bietet Ihnen gleichzeitig die Chance auf eine exklusive Bürofläche zur Miete.
Besonders spannend: Sie müssen nicht die gesamte Fläche mieten! Eine flexible Aufteilung in mehrere Mietflächen ist möglich, sodass wir Ihnen individuell angepasste Lösungen anbieten können.
Ihre Vorteile auf einen Blick:
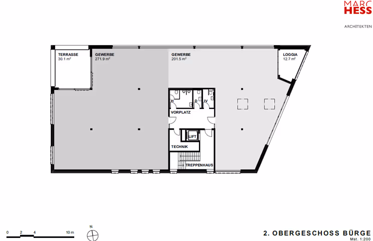
- Flexible Fläche: Insgesamt 471 m², flexibel aufteilbar und individuell nach Ihren Bedürfnissen gestaltbar.
- Top-Lage: Die Industriezone Dielsdorf bietet beste Anbindung und Infrastruktur.
- Modernste Ausstattung: Die Bürofläche wird mit neuester Kühl- und Lüftungstechnikausgestattet – für ein angenehmes Arbeitsklima zu jeder Jahreszeit.
- Gestaltungsmöglichkeiten: Die Fläche wird im Rohbau übergeben und kann nach Ihren Vorstellungen gestaltet werden.
- Extras inklusive: Eine Loggia von 13 m² sowie eine Terrasse von 30 m² runden das Angebot ab und bieten Ihnen und Ihrem Team zusätzlichen Raum.
Haben wir Ihr Interesse geweckt? Werfen Sie einen Blick auf den Grundriss und lassen Sie uns wissen, wie wir Ihnen weiterhelfen können. Wir freuen uns auf Ihre Kontaktaufnahme!
